top of page

L & D HOUSE
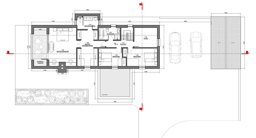
New family dwelling in rural County Mayo. The site affords expansive west facing views over the countryside and on towards Croagh Patrick mountain. The house design is a contemporary take on vernacular rural Irish architecture. Local materials and features such as a natural slate pitch roof, smooth plaster painted walls and natural stone cladding are presented in a contemporary design which makes use of spectacular views and a south-west facing sloped site. The proposal attempts to respond to the site characteristics and become part of the landscape sitting neatly within the contours. A ‘ha-ha’ boundary wall is incorporated into the west perimeter. Taken from 18th century landscape design, a 'ha-ha', is a recessed wall which creates a vertical barrier while preserving an uninterrupted view of the landscape beyond and in return reducing the visual impact of the site.
New Build House
WHERE
County Mayo
STATUS
Planning Permission Received February 2018
PROJECT SIZE
237sqm

bottom of page







